Seit den hängenden Gärten der Semiramis ist die Faszination für terrassierte Bauten und Häuser in der Architekturgeschichte ungebrochen. So führte die Utopie von hängenden Gärten im Verbund mit dem Streben nach gut belichteten und belüfteten Wohnungen zu den Terrassenhäusern eines Henry Sauvages in den 1920er Jahren - die bis heute ikonografischen Charakter haben.
Das «Wohnhaus mit Seeblick» steht in direktem Kontext dieser architekturgeschichtlichen Entwicklungslinie.
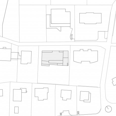
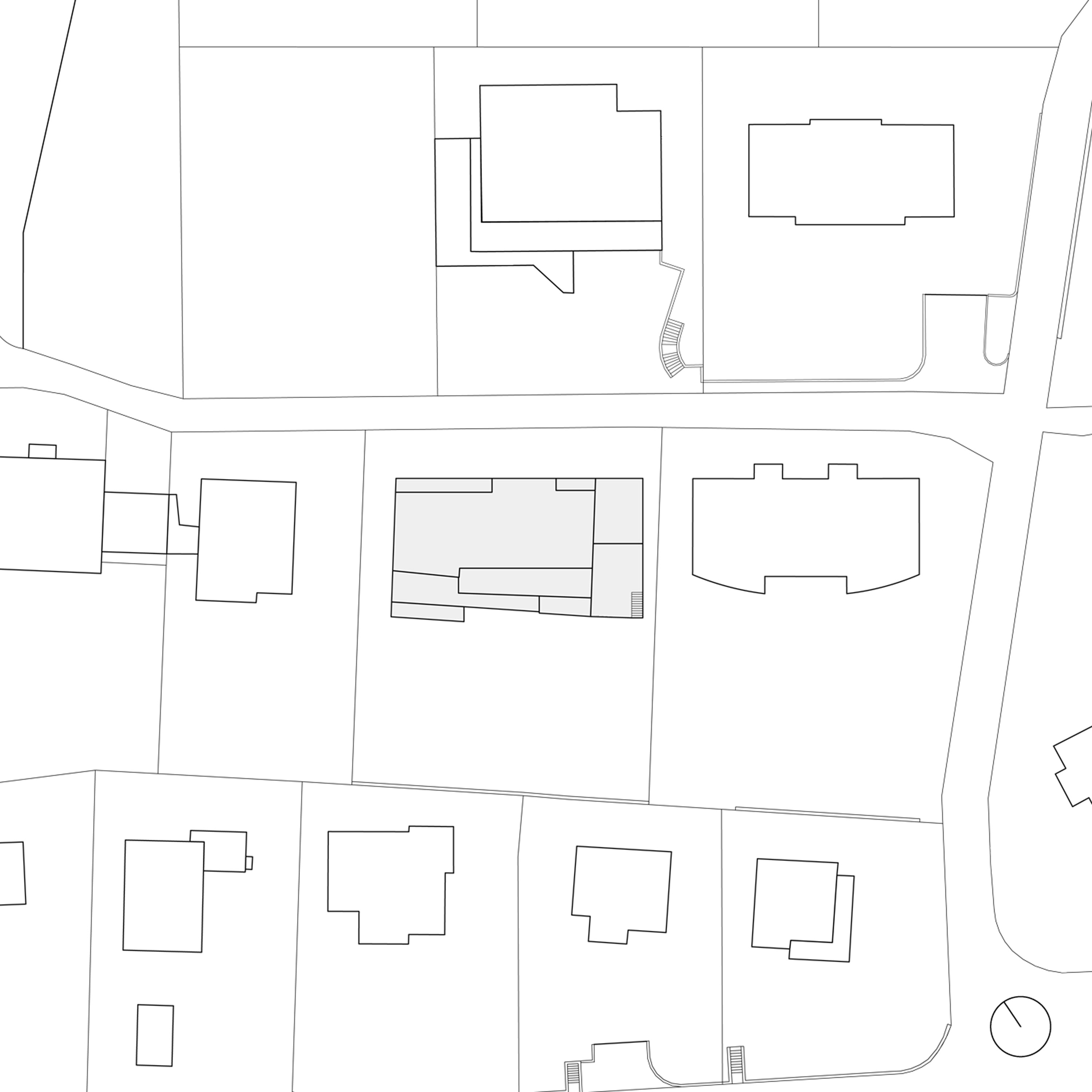
Ausgehend von der Idee der hängenden Gärten und dem Streben nach grosszügigen, nach Süden gerichteten Aussenräumen für jede Wohnung, wurde ein präzise gestaffelter Baukörper mit einer vielfältigen Terrassenlandschaft entwickelt, dessen gerader Rücken mit einer städtischen Fassade zur Strasse steht.
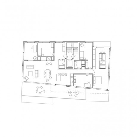
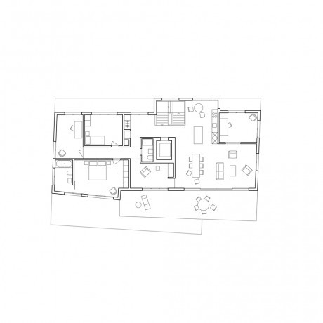
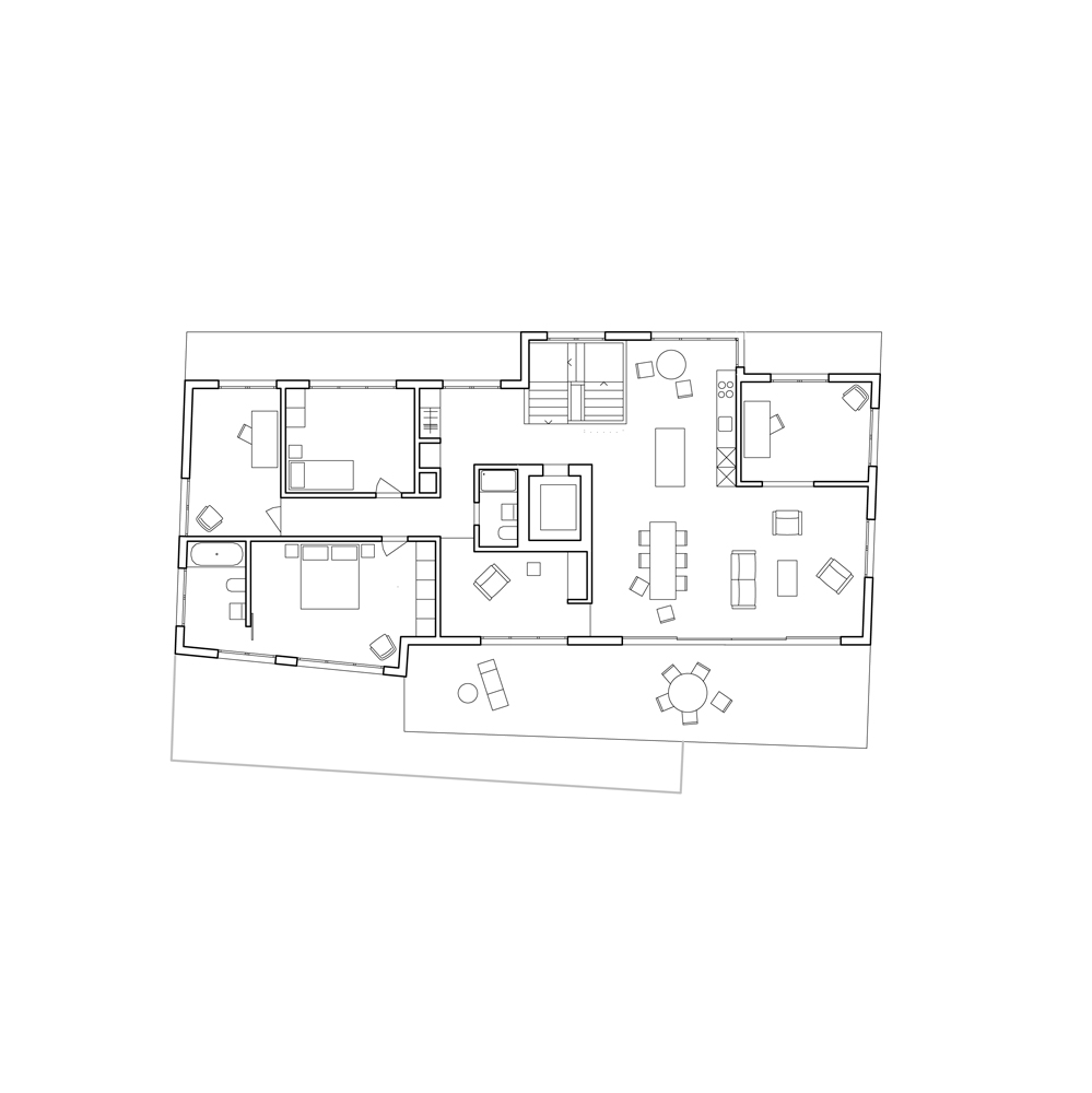
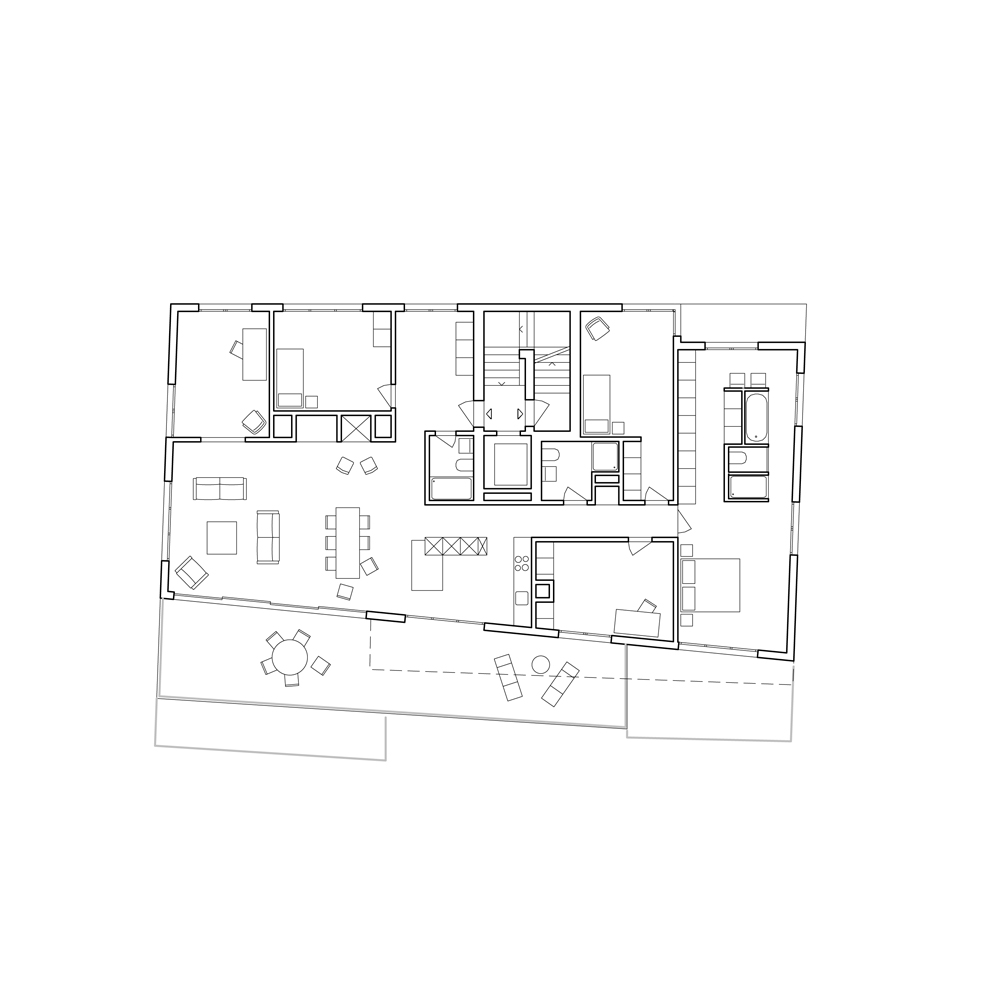
Die Vorstellung von Rundumgängen und grosszügigen Wohnküchen prägen die Grundrisse der sechs Etagenwohnungen.
Die stufenlose Anbindung der in breiter Front entlang laufenden Terrassen an den Wohnbereich, führt zu einem grosszügigen und weitläufigen Wohngefühl, das mit dem Weitblick über den Zürisee korrespondiert.
Das «Wohnhaus mit Seeblick» steht in direktem Kontext dieser architekturgeschichtlichen Entwicklungslinie.
Ausgehend von der Idee der hängenden Gärten und dem Streben nach grosszügigen, nach Süden gerichteten Aussenräumen für jede Wohnung, wurde ein präzise gestaffelter Baukörper mit einer vielfältigen Terrassenlandschaft entwickelt, dessen gerader Rücken mit einer städtischen Fassade zur Strasse steht.
Die Vorstellung von Rundumgängen und grosszügigen Wohnküchen prägen die Grundrisse der sechs Etagenwohnungen.
Die stufenlose Anbindung der in breiter Front entlang laufenden Terrassen an den Wohnbereich, führt zu einem grosszügigen und weitläufigen Wohngefühl, das mit dem Weitblick über den Zürisee korrespondiert.
Erbrachte Leistungen
Vorprojekt, Bauprojekt, Baueingabe, Ausführung exklusive Bauleitung
Bauherrschaft
privat
BKP 1–9
5.5 Mio. CHF
Geschossfläche GF
1’100 qm
Bauzeit
04/2009 – 07/2011
In Zusammenarbeit mit Oliver Bolli
Vorprojekt, Bauprojekt, Baueingabe, Ausführung exklusive Bauleitung
Bauherrschaft
privat
BKP 1–9
5.5 Mio. CHF
Geschossfläche GF
1’100 qm
Bauzeit
04/2009 – 07/2011
In Zusammenarbeit mit Oliver Bolli












